What could be the tallest building in Lenexa has been proposed a the southeast corner of 87th and Renner.
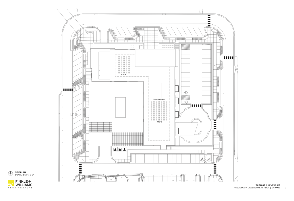
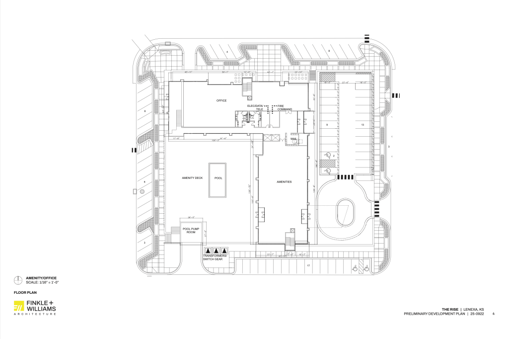
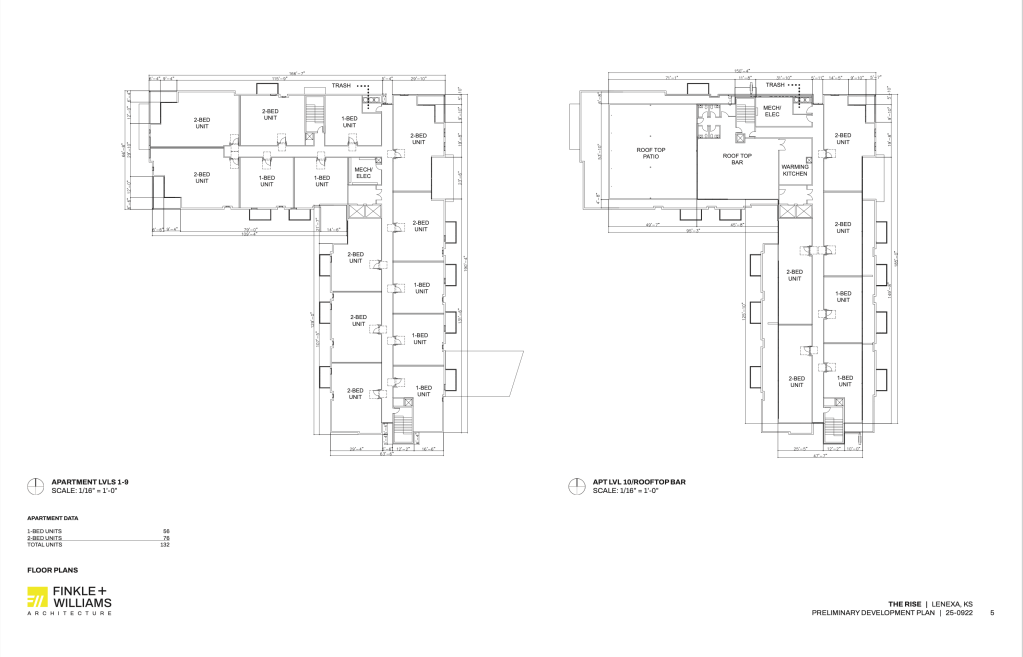
On October 6th 2025, the Lenexa Planning Commission reviewed a development proposal for “The Rise”, an 11-story apartment building that’ll add to the growing Lenexa City Center neighborhood. Plans call for the building to feature 132 apartments, 7500sf of commercial space (roughly 5000sf in ground-floor commercial space and an additional 2500sf of restaurant and bar space on the top floor). 116 parking spaces will be built in a parking garage. An additional 24 parking spaces will be added via a new surface parking lot along with 49 street parking spaces.
The Rise will stand around 137ft in height, exceeding the 110ft height limit established for the Lenexa City Center, but planning staff stated that the height is in compliance since its part of an overall development plan. The height will make this the tallest building in Lenexa as well as the tallest residential building in Johnson County. Other high-rise residential buildings (commonly defined as a structure being over 7-stories, or 75ft, in height) have been previously approved in Overland Park and Leawood.

The building will be clad in a mixture of brick, metal panels, and stone with aluminum railings planned for the balconies. Real Property Group is the developer. RPG developed the neighboring “The Lofts” building as well as Downtown Overland Park’s Interurban Lofts”. The developer describes the project as an “active adult” community for those 55 and older. Lenexa-based Finkle and Williams is the architect for this project.
Lenexa City Center has seen its appearance change a fair amount in recent years. Presently, a dual-brand AC and Residence Inn Hotel is being built at 87th and Penrose. Kiewit recently completed construction on another office building along Penrose. AdventHealth recently completed construction on a new hospital at 86th and Renner. Besides “The Rise”, another apartment building is planned at the northeast corner of 87th and Renner in a more suburban style. That one’s being designed by Klover Architects, developed by Price Development Group and features 215 apartments + retail space.
The Rise will make an appearance before the Lenexa City Council on October 21st per the planning commission document.
Additional renderings of “The Rise”, floor plans, a rendering of the AC/Residence Inn Hotel, and a rendering of Price’s project just north of this one are included in the gallery below.
















Leave a comment