The 4-story building, located at 415-17 Delaware in the River Market, is currently seeing a flurry of construction work.
The building, built in 1880, was previously home to a series of office tenants including landscape architecture and planning firm Confluence (which moved a few blocks away, but remains in the River Market neighborhood).
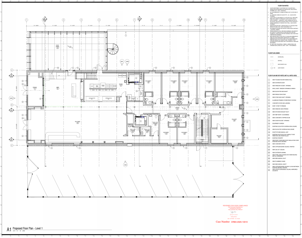
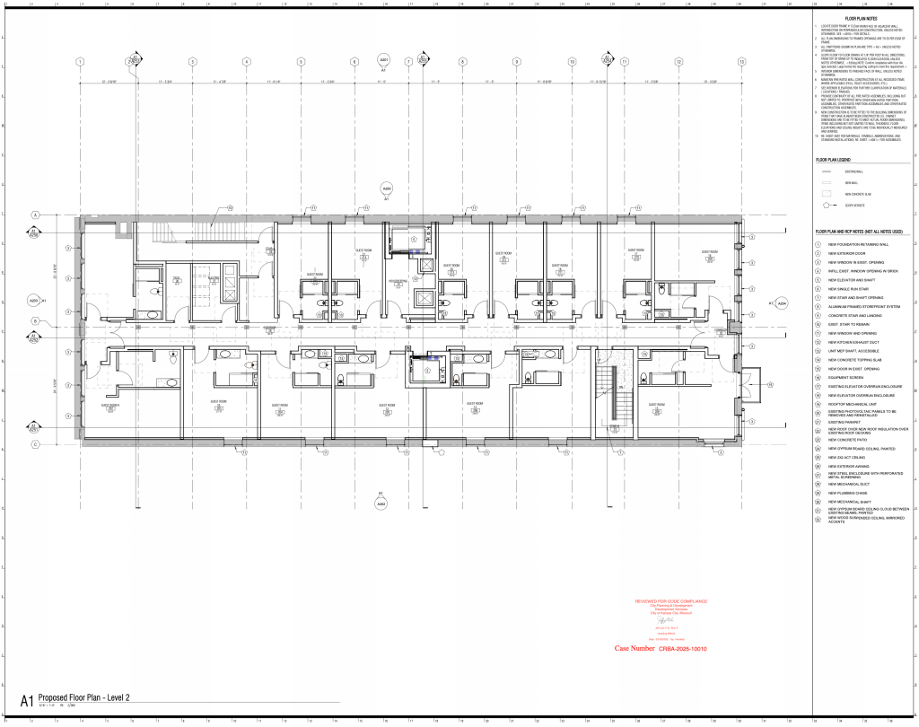
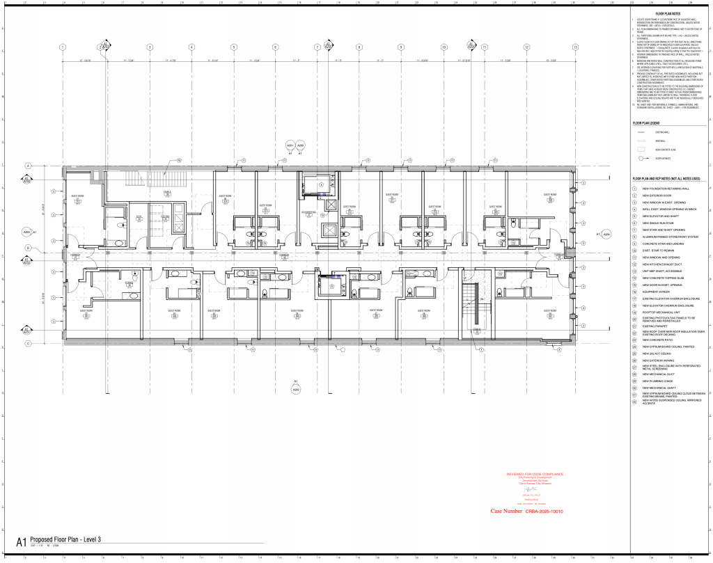
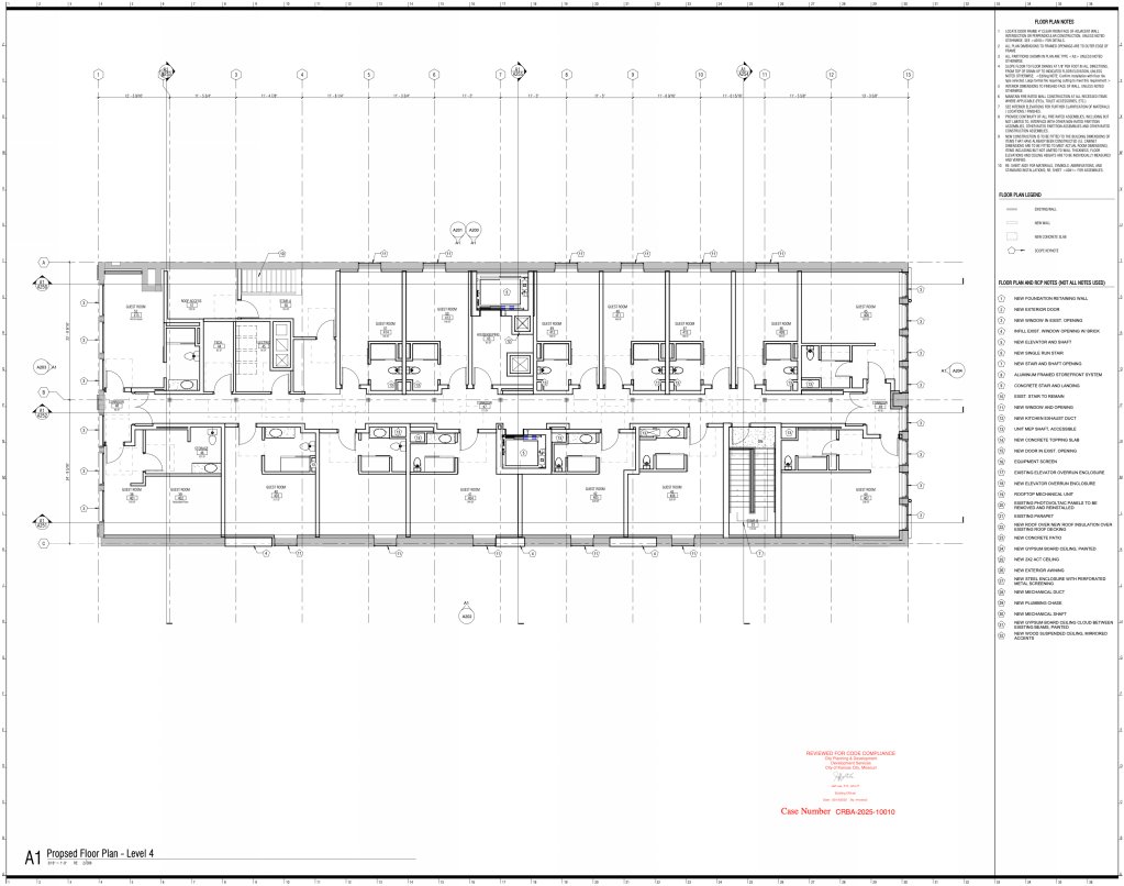
Now, the building is being redeveloped into a 51-room boutique hotel, an Italian restaurant named “Con Amore” (translates to “With Love”) in the basement with access from the alley, and a small lobby cocktail bar. A connecting small addition and patio space will be built on the vacant lot at 413 Delaware. The basement will include a fitness studio along with the restaurant. Parking will be available in the lot immediately south of the building.
Visitors to the River Market neighborhood will see construction crews going in and out of the building, windows have removed on the east side, and posters in the windows that face Delaware now proudly advertise the future “River Market Hotel“. Future guests will have easy access to the KC Streetcar, which has a stop (River Market West) just across the street.

The River Market Hotel will be the first hotel within the River Market neighborhood. The project isn’t the first pursued by the development team made up by Mike and Susan Heitmann and Paetra and Gino Serra in the neighborhood either.
In March 2022, they won administrative approval for a modern, 6-story infill building at 413 Delaware. Plans called for 2 condos, 14 hotel rooms, and a small commercial space with parking for the condos in the basement. The architect assigned to that project was MultiStudio (then GouldEvans). Thanks to interest rates spiking and material costs increasing, the developers eventually cancelled the infill project and moved towards redeveloping the building at 415 Delaware into a larger, but still desired, boutique hotel.
BNIM and Populous are serving as the architects for the River Market Hotel with Populous focusing on the interior design work. The hotel’s design will link Italian mid-century design with local themes. Cerris is serving as the general contractor for the project.
Project costs were estimated at $18 Million. No city incentives were sought for this project, but historic tax credits were expected to be sought.
The development team intends to have the River Market Hotel open to guests in time for the World Cup next year.
The gallery below features a rendering of the 413 Delaware infill proposal from 2022. The gallery also includes floor plans for the hotel.












Leave a comment