The booming 18th and Vine neighborhood could soon pick up a new hotel and expanded Negro Leagues Baseball Museum.
Proposed by Grayson Capital and designed by MultiStudio, the “Negro Leagues Baseball Museum District” is proposed for a series of parking and vacant lots to the southwest of the 18th and Paseo intersection. Initially, a new Negro Leagues Baseball Museum and adjoining hotel would be constructed.
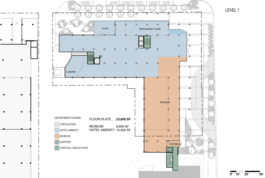
The hotel, which is planned to stand 8-stories tall, will replace the surface parking lot at 18th and Paseo. Plans, uploaded to CompassKC, detail the hotel featuring around 120 hotel rooms, a rooftop amenity, and space for a ground floor restaurant. The hotel would be clad in a mixture of brick, precast concrete, metal panels and glass.
The Negro Leagues Baseball Museum will front the Paseo and be spread out over 2 floors and cover over 18,000sf of space. It’ll be connected to the neighboring YMCA Building at 1824 Paseo, which itself will become the Buck O’Neil Research Center. The museum would move from 1616 East 18th to the new building at 1800 Paseo.
Beyond the hotel and new museum, Grayson Capital is also planning a 150-unit apartment building near 18th and Lydia, but plans have yet to be submitted for that. The City is expected to construct a shared parking garage between the hotel, museum and the apartment building that’ll serve those usages and the greater 18th and Vine area.
DRAW Architects and Pendulum Studio are working on other components of Grayson’s plan.






Leave a comment