The mostly vacant, 11-story former department store at the northwest corner of 11th and Main is set to come back to life.
Exact Architects is the leading the charge with this project. The firm is behind the renovation of the Carnival Building at 8th and Broadway into the Harvey Dutton Lofts, ongoing redevelopment of 929 Walnut into apartments, and additional apartment developments located in the Aines Dairy Building in Martini Corner, Netherland and Monarch Buildings at 39th and Main, the ABC and Anderson Buildings at Linwood and Main, the Wonder Lofts at 30th and Troost, and the Acme Building at Linwood and Holmes.
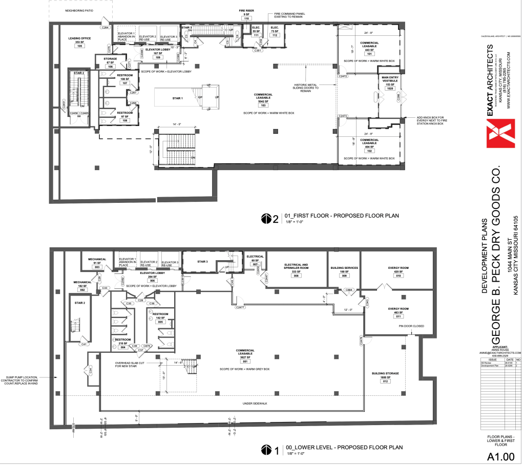
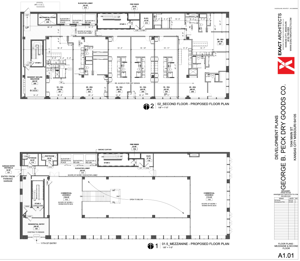
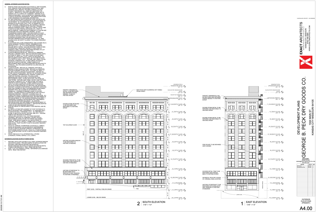
Planned for the white terra-cotta facade building are 74 apartments and commercial space. 45 apartments are to be one-bedroom units and the remaining 29 will be two-bedroom. Plans show that the original storefront will be restored along Main. The top floor will include the amenities for the residents.
Up until this point, the building has been used as office space, but didn’t appear to have a very high occupancy percentage. The property was most recently owned by real estate YouTuber and podcaster Troy Kearns.
The Peck’s Building is one of the last structures that once made up “Petticoat Lane”, Downtown’s premier shopping corridor in the 1900s. Across Main is the former Harzfeld’s store building, but that’s all that’s left of the old downtown department store buildings. Both Peck’s and Harzfeld’s are 2 of the 4 pre-urban renewal buildings left fronting Main between the North Loop and 16th Street. The only other pre-WW2 commercial buildings left on Main on that stretch is the Main Street and Midland Theaters in the Power and Light District.
Per Exact’s development application to the City, they intend to seek incentives from the LCRA. A hearing on the proposal is scheduled for March 18th at the Planning Commission. A timeline and project cost are not provided in the development application.
The gallery below features the plan’s elevations and proposed floor layouts.






Leave a comment