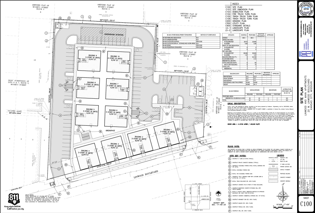
The presently vacant site, and the former home of a funeral home, at 20 West Linwood has a new project proposal.
Planned by VanTrust Real Estate, and designed by Rosemann and Associates, is a plan for 10, 3-story, 6-plex buildings (60 total apartments) and 82 parking spaces. 4 of the 10 buildings will front Linwood Boulevard. Parking will wrap the north, east and west sides of the development in almost a “U” shape. The apartments are designed to be “workforce housing”, which means they’ll be more affordable than other new construction apartments.
The design of the buildings is simple, but echoes back to older 6-plex designs in their layouts.
The project sits within a short walk of the 31st Street/Union Hill Streetcar stop and is the latest multi-family development to pop up in Midtown. Other nearby apartment developments include the under construction ArriveKC complex at 31st and Baltimore, Streetcar Lofts on 31st Street, and Mac Properties’s 1 West Armour.
No timeline is available for this project yet nor is a project cost or if VanTrust will seek incentives from the City of Kansas City or Low Income Housing Tax Credits (LIHTC) from the State.


Leave a comment